Käina kultuurikeskus

Käina huvi- ja kultuurikeskuse rekonstrueerimistöödega alustatakse sel suvel

Käina osavalla valitsus kuulutas aprilli lõpus välja hanke Käina huvi- ja kultuurikeskuse rekonstrueerimise kolmanda etapi ehitustöödeks. Pakkumuste esitamise tähtaeg on 21. mai kell 11.  

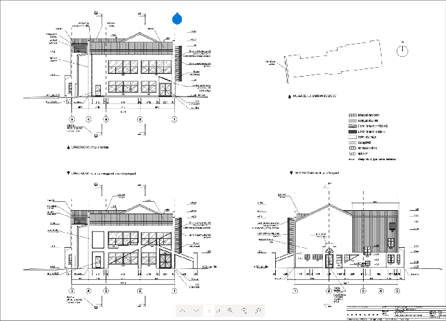
Rekonstrueerimistööde käigus on plaanis lammutada huvi- ja kultuurikeskuse keskmine ehk kõige vanem osa ja asemele ehitada kaasaegne hoone. 

Ehitustööde lõppedes asub hoone uus peasissepääs maja keskel ehk seal, kus on hetkel Luige baari saal. Alumisele korrusele ehitatakse suure saali riietusruumid ja WCd. Ülemise korruse kitsa koridori asemele tuleb uus avar fuajee ja trepihall saali ukse taga.   

Huvi- ja kultuurikeskuse ette tuleb parkla ja ka hoone ümbrus saab korda. "Kahjuks ei mahtunud eelarvesse Mäe tänava poolse hoonemahu soojustus ja viimistlus, mis on võimalik tulevikus lahendada energiasäästu projektidega," lisas Käina osavalla vanem Omar Jõpiselg. 

Käina noortekeskus laieneb praeguse kultuurikeskuse fuajee ruumidesse. Lisaks tuleb hoone esimesele korrusele päevakeskus, kus saavad käia ka erivajadustega inimesed.   

Käina kaunite kunstide kooli õppeklassid jäävad peale rekonstrueerimistöid endisele kohale.  

Käina osavalla valitsusel on Hiiumaa haiglaga kokkulepe, et kultuurikeskuse hoonesse ehitatakse samuti välja uued Käina perearstikeskuse ruumid. Need hakkavad paiknema praeguste Luige baari ja PRIA ruumide kohal.  

Käina huvi- ja kultuurikeskuse ehitustööd algavad sel suvel ja peaksid eeldatavasti valmima käesoleva aasta detsembris.  

Ehituse prognooseelarve koos käibemaksuga on 1,15 miljonit eurot.